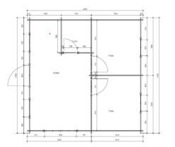
Casa de madera modelo Berga de 36,00 m² construidos y de 32,10 m² de superficie útil, con 45 mm de grosor de la madera. Medidas: 6,0 m x 6,0 m.
Consta de un ambiente destinado para sala de estar de 15,30 m² y dos habitaciones de 7,12 m² cada una y un cuarto de aseo 2,51 m².
Es una casa perfecta para invitados o para alojarse en ella durante las vacaciones y los fines de semana. Nuestra casa de madera está fabricada con madera de 45 mm de grosor, es duradera, respetuosa con el medio ambiente, saludable.
Una ventaja significativa de la casa de madera Berga de alta calidad es que ofrece una distribución cómoda y practica por un precio muy económico.
KIT INCLUYE:
Estructura de madera prefabricada a medida.
Puerta de entrada de madera semi acristalada doble cristal 4/6/4 mm con medidas 92 cm x 205 cm 1 unidad.
Puerta de interior de madera con medidas 81 cm x 205 cm 2 unidades.
Puerta de interior de madera con medidas 69 cm x 205 cm 1 unidad.
Ventanas de madera calidad doble cristal oscilobatientes 4/6/4mm con medidas 81 cm x 105 cm 4 unidades.
Ventana de madera calidad doble cristal oscilobatiente 4/6/4mm con medidas 156 cm x 105 cm 1 unidad.
Ventana de madera calidad doble cristal 4/6/4mm con medidas 55 cm x 55 cm 1 unidad.
Vigas de madera para estructura.
Vigas de madera para tejado.
Tablas de madera machihembradas de 19 mm de grosor para el tejado.
Tablas de madera machihembradas de 28 mm de grosor para el suelo.
Herrajes y tornillería (clavos, tornillos, manillas y cerraduras de cilindro en puerta entrada).
Planos de montaje.
KIT NO INCLUYE:
Material asfáltico para cubierta de tejado.
Tratamiento de protección para la madera.
Pintura de protección para exterior.
Contraventanas de madera para las ventanas y puertas.
Detalles y decoraciones varias mostradas en fotografías del producto.
Transporte del kit de madera (consultar).
Montaje del kit de madera.
* Precio kit de madera sin montaje.

















