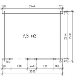
Caseta de jardín Dakos de 7,5m² construidos y de 6,1m² de superficie útil con voladizo, de 28 mm de grosor de la madera.
Medidas: 3,0m x 2,5m. El espacio interior es completamente diáfano se puede utilizar como bonito estudio o trastero.
Caseta de madera funcional. elegante y compacta, de fácil construcción y acabados de alta calidad.
KIT INCLUYE:
Estructura de madera prefabricada a medida.
Puerta de entrada de madera semiacristalada con medidas 81cm x 195cm 1 unidad.
Ventana de madera con medidas 85cm x 68cm 1 unidad.
Vigas de madera para estructura.
Vigas de madera para tejado.
Tablas de madera machihembradas de 19 mm de grosor para el tejado.
Tablas de madera machihembradas de 28 mm de grosor para el suelo.
Herrajes y tornillería (clavos, tornillos, manillas y cerraduras de cilindro en puerta entrada).
Planos de montaje.
KIT NO INCLUYE:
Material asfáltico para cubierta de tejado.
Tratamiento de protección para la madera.
Pintura de protección para exterior.
Porticones de madera para las ventanas y puertas.
Detalles y decoraciones varias mostradas en fotografías del producto.
Transporte del kit de madera.
Montaje del kit de madera.
* Precio kit de madera sin montaje.














